3432Z Rue Peel
Montréal (Ville-Marie), Montréal H3A3K8
Condo commercial | MLS: 9964044
1 700 000 $
Description
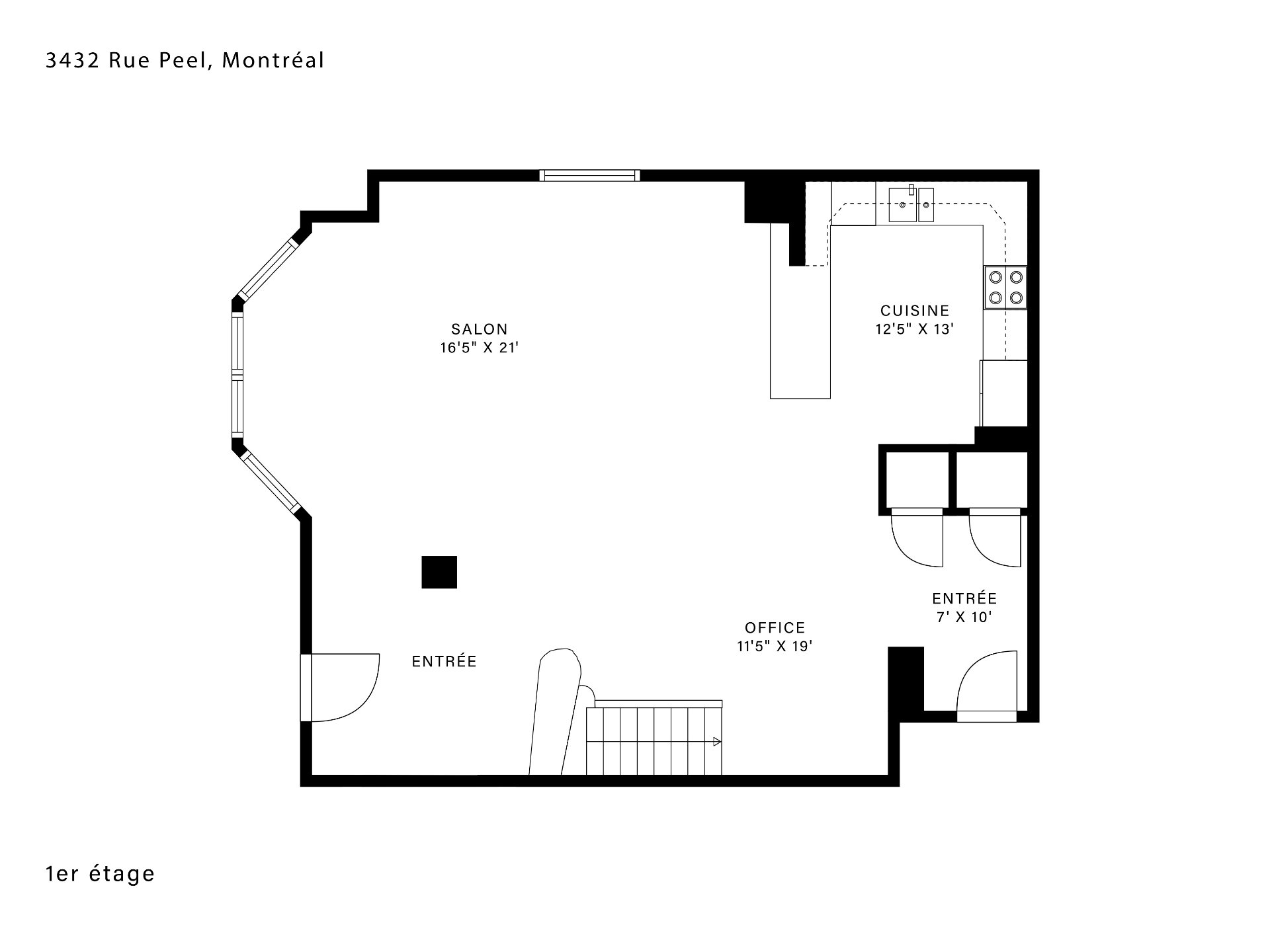
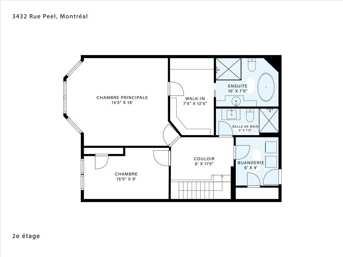
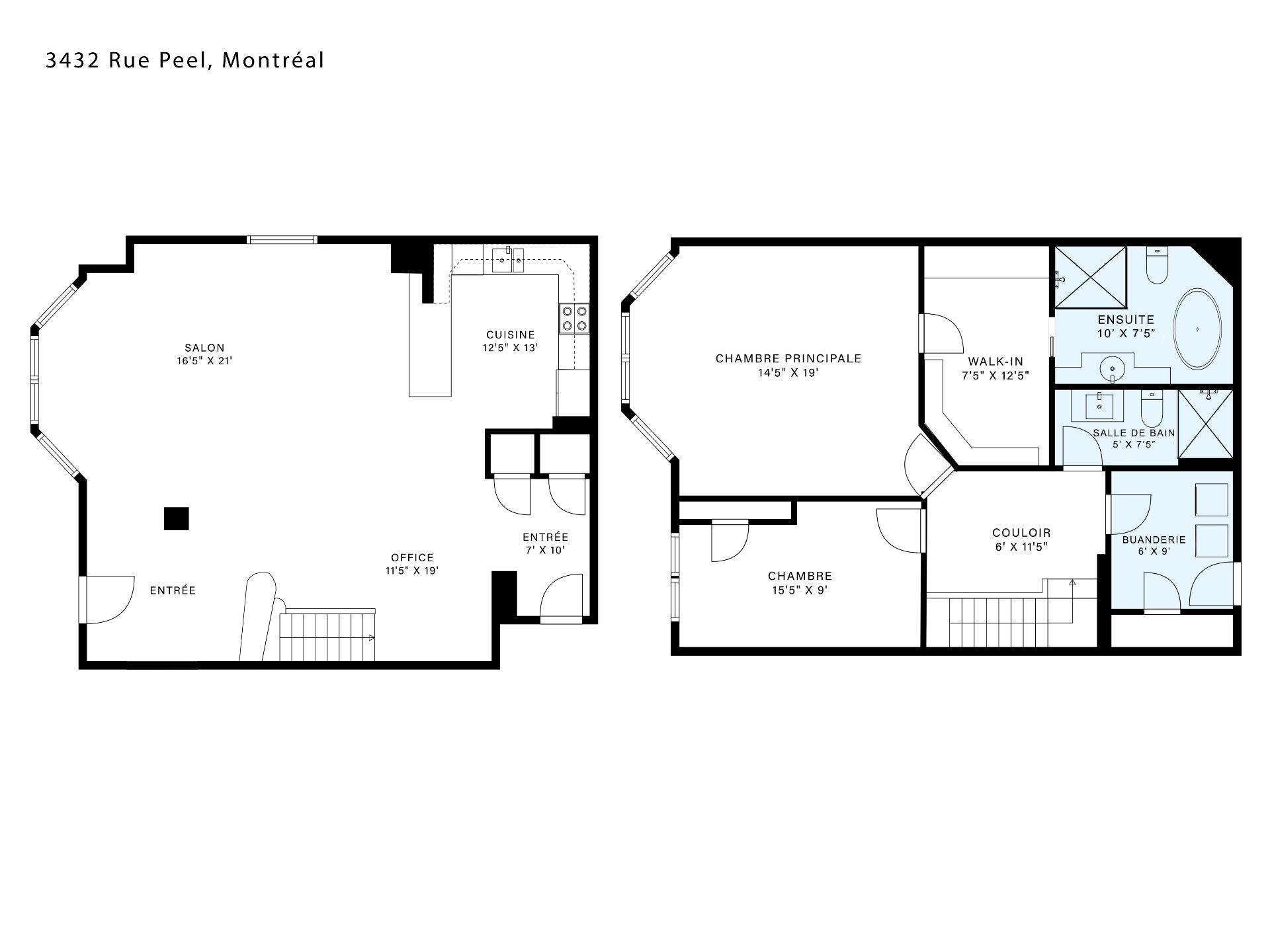
Situé au coeur de Ville-Marie, ce condo sur deux niveaux vous séduira dès le premier regard par son architecture unique mettant en valeur une entrée indépendante en plus d'un accès intérieur. À l'intérieur, son espace de vie à aire ouverte propose un vaste séjour lumineux complété par une cuisine moderne. Vous y trouverez deux chambres, dont une suite principale avec walk-in et salle de bain attenante, une seconde salle de bain ainsi qu'une salle de lavage. L'immeuble offre de nombreuses commodités haut de gamme, en plus d'un espace de stationnement au garage. Une propriété d'exception, convenant autant à un usage résidentiel que commercial!
L'âme du Mille carré doré : La Maison Archibald-Nicolls au 3432 rue Peel.
S'installer au 3432 rue Peel, ce n'est pas simplement acquérir une propriété, c'est devenir le gardien d'un chapitre essentiel de l'histoire montréalaise. Intégrée avec élégance au prestigieux complexe du Sir Robert Peel, cette demeure historique -- autrefois connue sous le nom de Maison Archibald-Nicolls -- incarne la fusion parfaite entre le faste victorien du XIXe siècle et le confort moderne de la vie urbaine contemporaine.
Un héritage architectural préservé. Construite vers 1890, cette résidence en pierre grise de Montréal est une pièce maîtresse du patrimoine du Mille carré doré. Son architecture néo-Queen Anne, avec ses lignes classiques et sa prestance intemporelle, témoigne de l'époque où la rue Peel était l'adresse la plus convoitée par les bâtisseurs de notre métropole. L'équilibre unique : Histoire et Prestige. Ce qui rend cette propriété réellement fascinante, c'est sa double identité. Elle offre le cachet authentique d'une maison de ville historique privée tout en bénéficiant de l'infrastructure et des services de haut niveau du complexe Sir Robert Peel. C'est l'alliance rare d'une intimité patrimoniale et de la sécurité d'une copropriété de luxe : conciergerie, accès aux installations privées et une adresse qui inspire le respect.
Vivre au 3432 rue Peel, c'est habiter au coeur battant de Montréal, là où l'élégance du passé rencontre le dynamisme du futur. C'est choisir une propriété qui ne se démodera jamais, portée par une histoire riche et une architecture qui défie le temps.
**Note : Les taxes municipales sont estimées à $9,300 pour l'usage résidentiel. Les taxes actuelles sont plus élevées en raison de l'usage commercial.**
Inclus : Réfrigérateurs (sub zero), cuisinière, lave-vaisselle, fixtures, stores, laveuse-sécheuse, micro-onde.
Location
Caractéristiques
| Mode de chauffage | Air soufflé, Plinthes électriques |
|---|---|
| Facilité d'accès | Ascenseur |
| Stationnement | Au garage |
| Sous-sol | Aucun sous-sol |
| Proximité | Autoroute/Voie rapide, Transport en commun |
| Équipement disponible | Autre, Interphone, Thermopompe centrale |
| Genre de commerce | Bureau |
| Zonage | Commercial, Résidentiel |
| Énergie pour le chauffage | Électricité |
| Stationnement cadastré (inclus dans le prix) | Garage |
| Garage | Intégré |
| Système d'égouts | Municipal |
| Approvisionnement en eau | Municipalité |
| Type de commerce/Industrie | Service |
Cette inscription est présentée en collaboration avec RE/MAX ALLIANCE INC.